Pole enfance Multi accueil de Lourdes

enseignement et petite enfance

  • Lieu Lourdes
  • Maître d'ouvrage Syndicat Intercommunal Multi-Accueils Jeunesse et Ecoles (SIMAJE)
  • Équipe de maîtrise d'œuvre AEC (BET Structure), Coseco (Economiste), Soconer (BET Fluides et CFO CFA), Sigma acoustique (BET Acoustique), Complément Terre (Paysagiste)
  • Calendrier Concours Lauréat 2023
  • Coût des travaux 3 915 000 € HT
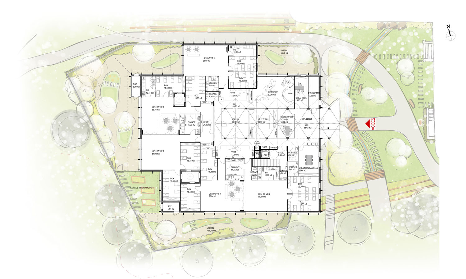
  • Surface de plancher 1 377 m2

Une architecture comme une suture paysagère

En contrebas du quartier de la gare, longé par le fort dénivelé Nord Sud de l’avenue Hélios et reliant le boulevard du Lapacca, ce nouvel équipement participe à la recomposition urbaine du secteur : une architecture comme une suture paysagère entre ville haute et basse.

L’intégration du bâti dans un véritable poumon vert, se veut en harmonie et en cohérence avec le nouvel aménagement public requalifié (jardin de verdure).

La couverture, «5ème façade » avérée, visible depuis l’amorce en surplomb de l’avenue Hélios, se veut intégrée et s’inscrit dans la continuité des palettes paysagères du nouvel environnement ainsi dessiné.

Seule une délicate et aérienne couverture zinc « Origami » signale la présence d’un bâti.

L’intense minéralité du site actuel est complètement effacée, laissant place à un équipement déclencheur d’une nouvelle centralité urbaine paysagère, d’un lieu paisible au service de l’éveil de l’enfant.

Une attention particulière a été portée sur la végétalisation des cours privatives par des îlots verts qui renforcent également cette unité paysagère. Ces espaces extérieurs sécurisés sont situés au-dessus d’un socle en béton blanc semi-enterré adapté à la topographie du site.

Le dialogue avec le tissu urbain a donc été guidé naturellement par le choix d’un bâtiment sobre, de faible hauteur et intégré dans la topographie avec une entité indépendante ne rentrant pas en conflit avec le bâti environnant et laissant place à une unité paysagère d’ensemble.

 

Des accès distincts identifiés

L’entrée principale du bâti, clairement identifiée par la structure bois arborescente porteuse de la couverture « Origami », s’inscrit dans la continuité des cheminements PMR qui viennent structurer le jardin public de verdure, véritable centralité végétale.

Cet espace public ainsi organisé est une interface paisible entre le parking principal du gymnase, les cheminements doux longeant le boulevard Hélios sur la partie haute et le parking de service accessible depuis le boulevard du Lapacca.

On peut également imaginer ce jardin comme une toile de fond paysagère dans le cadre d’une éventuelle rénovation des vestiaires désaffectés qui pourraient être requalifiés en espace d’exposition temporaire.

L’entrée secondaire affectée aux services et aux accès personnels est accessible exclusivement depuis le parking du boulevard du Lapacca.

 L’ancienne piscine comme socle du projet

Dans un pragmatisme affirmé, nous avons pris le parti d’intégrer le bassin de nage désaffecté à la conception du projet en se reposant sur ses infrastructures.

De plus, à l’intérieur de ce volume, socle structurel du projet, sera installé un système de stockage d’eaux d’une capacité de 300m3, qui, relié à l’ensemble des panneaux solaires thermiques, permettra de récupérer l’énergie calorique induite. Un deuxième volume de récupération des eaux de pluie, viendra compléter les besoins en arrosage des espaces paysagers.

 Une ambition environnementale cohérente

A la fois dans le respect des ambitions environnementales de la maîtrise d’ouvrage mais aussi, fort d’une relation cohérente avec les matérialités du jardin public, le choix de matériaux constructifs biosourcés s’est rapidement imposé.

Notre volonté est de construire en bois, matériau renouvelable, faible consommateur d’énergie pour sa production et dont les filières locales seront privilégiées.

L’emploi du bois à plus de 70% prédomine dans notre conception (Charpente, bardage, menuiseries intérieures, isolation, traitement acoustique, mobilier intégré…).

A l’écoute des enfants dans leur apprentissage, la présence du bois associé et harmonisé à des tons chaleureux amène quiétude et calme indispensable dans leur épanouissement.

 Des ouvrants dans tous les espaces permettront d’assurer la sur-ventilation naturelle nécessaire à un bon confort d’été.

Le sol des espaces extérieurs sera proposé en liège coulé, matériau écologique, recyclé et renouvelable, qui en plus de ses qualités esthétiques est adapté pour amortir les chutes.

Une trame matérialisée, une identité formelle

Toujours avec un pragmatisme clairement affiché, le système porteur poteaux-poutres bois permet de définir des volumes selon des axes constructifs simples et efficaces dans le but de concilier une modularité d’aménagement et une évolutivité des différents espaces intérieurs.

Cette trame rigoureuse, visible et affirmée en façades, crée un rythme harmonieux de composition. A noter que de généreuses avancées périphériques en zinc apportent, outre une protection contre un vieillissement prématuré du bois et des abris pour les enfants, une linéarité d’échelle qui favorise l’intégration du bâti.

Le plan clair et rationnel permet de libérer un volume central en double hauteur autour duquel vient s’implanter le hall principal, l’atrium et la salle des jeux d’eau.

Ces espaces, baignés d’une lumière naturelle tamisée, sont magnifiés par une structure bois arborescente « Origami » et ludique, qui marque l’identité formelle de l’équipement.

 Une organisation intérieure fluide

L’organisation intérieure répond de manière claire aux attentes du programme.

L’ensemble est organisé autour d’un atrium central réservé aux enfants, autour duquel s’articule les différents espaces de vie accessible depuis de larges vestiaires ouverts, facilement identifiables par des jeux chromatiques.

Cette organisation de plain-pied, en accès direct depuis le jardin public facilitera le travail des éducateurs, mais aussi et surtout le déplacement des enfants.

Un tel équipement se doit être le lieu d’accueil et d’éveil pour les tout-petits, mais également un espace professionnel pour les adultes qui doit être pratique, efficace et confortable.

Les espaces de vie de chaque unité sont positionnés de telle sorte qu’ils puissent jouir d’une agréable vue sur des jardins extérieurs en terrasse adaptés aux différentes étapes de l’éveil de l’enfant.

Concept paysager 

Le projet de paysage se construit depuis et autour des éléments fondateurs et naturels du site : le sol, la faune, la flore, l’écoulement de l’eau, la lumière, l’orientation, la topographie ainsi que l’histoire des lieux.

Il s’agit dans ce projet de réintroduire de la vie et d’assurer un environnement valorisant pour les enfants, le personnel et les usagers de l’espace public. Cela signifie, concevoir un aménagement propice aux divers usages en accordant une place importante à la végétalisation.

Le projet s’inscrit autour d’une échelle plus vaste, d’éléments identitaires du site, à savoir la végétation environnante. Le maintien de cette végétation est primordial dans le projet, car elle constitue le patrimoine arboré de l’ancienne piscine municipale. Le bâtiment de la crèche situé comme un promontoire vers les coteaux du Lapacca bénéficie de cette canopée végétale, offrant au site et aux cours une vaste zone d’ombre.

Dans la continuité de cet environnement, nous avons souhaité proposer un jardin paysager. Le concept de l’aménagement proposé se base sur l’histoire des lieux. Autrefois, le ruisseau du Lapacca recouvrait le boulevard de la grotte. De nos jours, son tracé se devine par ses versants.

C’est sur la thématique de l’eau que nous avons souhaité construire le socle du jardin public. L’eau, comme une trace, comme un élément en mouvement. Pensé comme un jardin, le parvis du bâtiment est largement végétalisé.

L’aménagement paysager 

Le jardin se relie au futur projet de passerelle piétonne, cet axe majeur de la composition paysagère est marqué par la présence du chemin de l’eau qui prend sa source depuis des éléments rocheux positionnés au Nord du jardin. Ce filet d’eau qui traduit le mouvement dans l’aménagement s’accompagne de cheminements en pas japonais dans des zones engazonnées.

Ces espaces végétalisés, se composent à l’Est de légers modelés accueillant quelques arbres au développement moyen.

A l’Ouest du chemin de l’eau une couronne arborée au sujet plus haut accompagne la façade du bâtiment. Cette composition permet depuis le futur projet de la parcelle de traverser le jardin.

Des cheminements PMR sont également prévus pour assurer les déplacements en poussettes et en fauteuils roulant jusqu’à l’entrée de la crèche. Ces cheminements seront rythmés par divers éléments : de légers modelés, une sculpture en Corten reprenant le tracé du Lapacca et détaillant l’histoire dupaysage de Lourdes, des espaces largement végétalisés et le chemin de l’eau. Ce petit cours d’eau traverse le jardin jusqu’à la passerelle, lorsqu’il rencontre les cheminements PMR, le cours d’eau passe sous de petits pontons, il redevient visible dans les espaces végétalisés. Petits et grand pourront s’amuser à laisser glisser feuilles et bâtonnets.

Le projet des cours de la crèche s’inscrit dans son environnement. Les cours se soucient de la proximité des arbres existants, les intègrent à l’aménagement et prend en compte la richesse de leur ombrage. Basées sur le concept des cours Oasis, les cours sont largement végétalisés. Les espaces de cours sont conçus de la manière suivante : un fond de scène végétale pour créer de l’intimité et de l’ombre. Ces espaces ne sont pas accessibles des enfants pour assurer le bon développement des végétaux et permettre de planter des végétaux aux floraisons colorées et diversifier pour proposer aux enfants un réel tableau paysager.

La palette végétale propose une large diversité afin de favoriser la biodiversité. Cet espace accueillera également des hôtels à insectes et nichoirs pour que les enfants puissent observer la faune. Ces espaces de fond de scène seront fermés par une légère ganivelle non pointu pour créer une limite légère. Dans la zone de la cour, de petites ilettes végétalisées dynamiseront l’espace, certaine seront engazonnées et accessibles, d’autres seront clôturées pour assurer la pérennité des végétaux. Ces petites ilettes accueilleront des éléments en bois, de petits modelés de terre végétalisés (h40-50cm) et des pas japonais afin de stimuler la motricité des enfants.

Quelques arbres seront plantés dans ces ilettes pour apporter un ombrage supplémentaire aux végétaux existants conservés. Les fonds de scène densément végétalisées et les petites ilettes apporteront un cadre agréable aux enfants favorable à leur développement.