Médiathèque de Saint-Paul-sur-Save

culturel

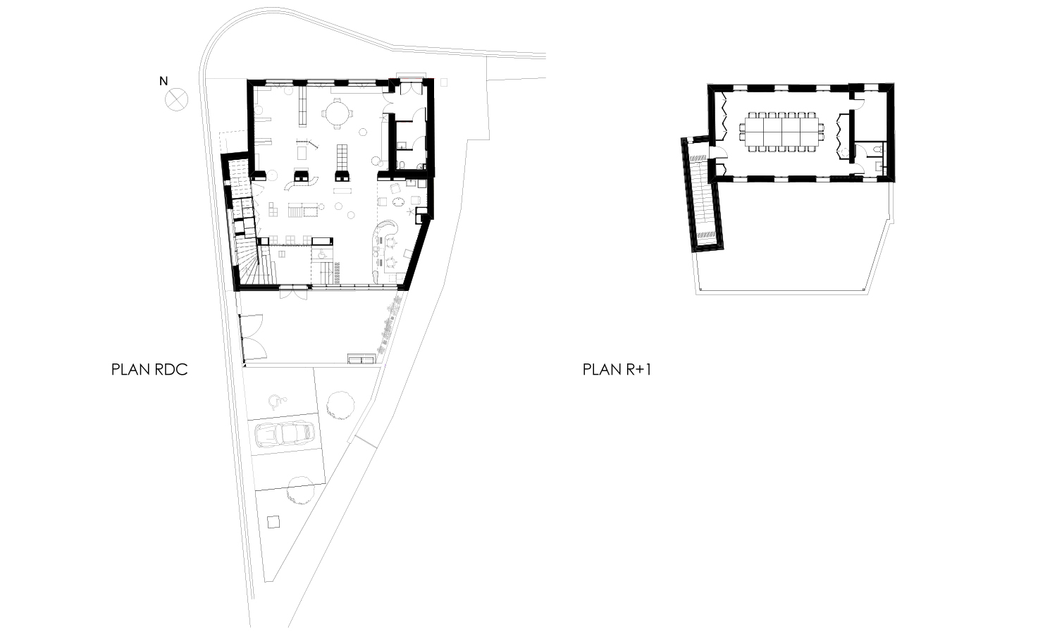
  • Lieu Saint-Paul-sur-Save (31)
  • Maître d'ouvrage Commune de Saint-Paul-sur-Save
  • Équipe de maîtrise d'œuvre Goubert & Landes, 3J Technologies (BET Structure), C.A.R.T.E (BET Fluides et CFO CFA)
  • Calendrier 2019
  • Coût des travaux 420 000 € HT
  • Surface de plancher 249 m2

Réhabilitation et extension de la médiathèque municipale de Saint-Paul-sur-Save.

 

Crédits photos : Goubert&Landes, internet