Immeuble de bureaux Quartier Borderouge à Toulouse

tertiaire

  • Lieu Toulouse
  • Maître d'ouvrage NACARAT
  • Équipe de maîtrise d'œuvre Goubert & landes, 1G2L, Occinergy, G2 Ingénierie
  • Calendrier Etudes en cours
  • Coût des travaux 8 M € HT
  • Surface de plancher 4 575 m2

L’aménagement de la ZAC Borderouge a profondément modifié le paysage urbain avoisinant. En effet, la plupart des aménagements du quartier sont aujourd’hui achevés.

La ZAC mêle habitat, bureaux, culture et services dans un cadre de vie à l’image d’une ville-jardin. Le Carré de la Maourine est la centralité du quartier.

Outre les nombreux services de proximité, elle accueille la station de Métro permettant de relier le quartier au centre historique en une quinzaine de minutes.

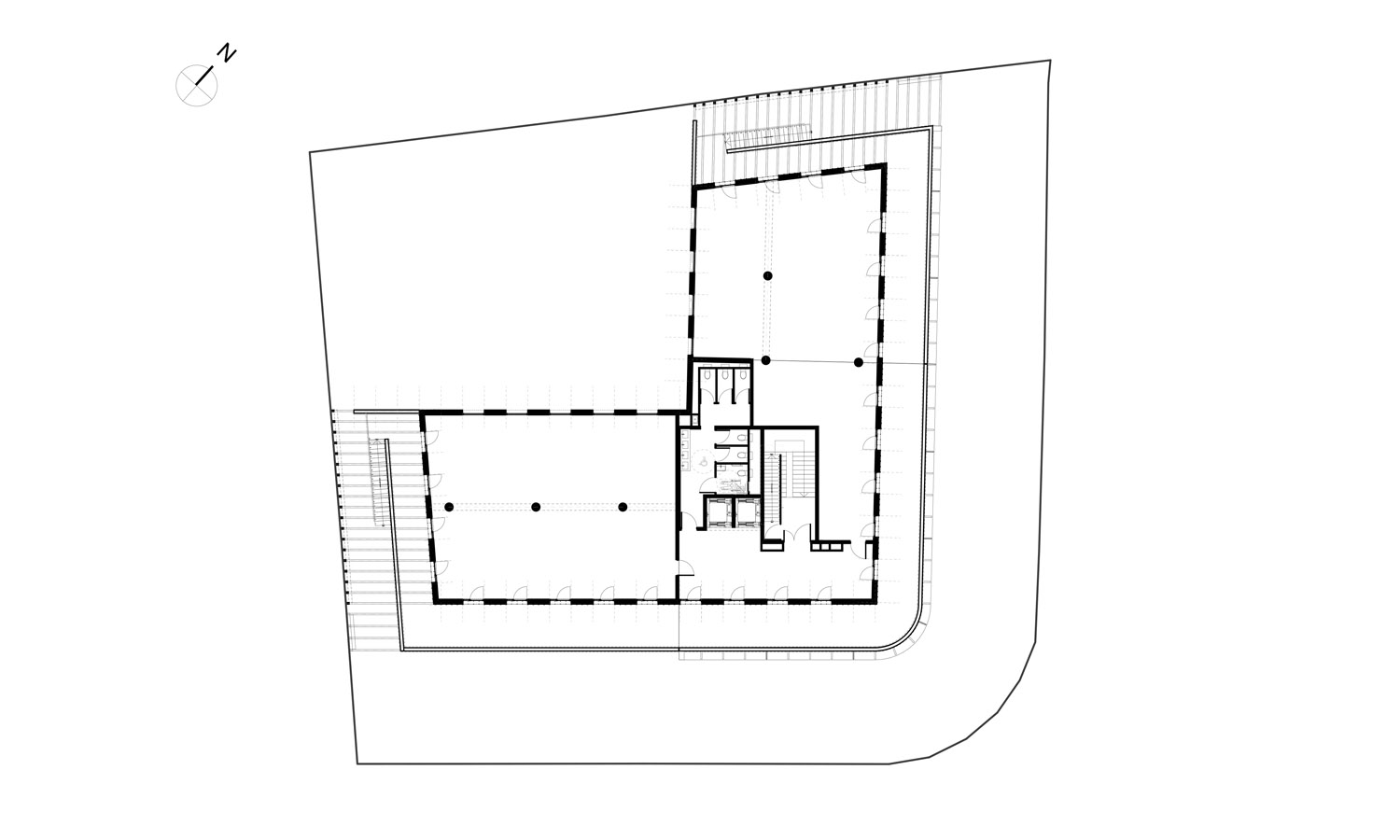
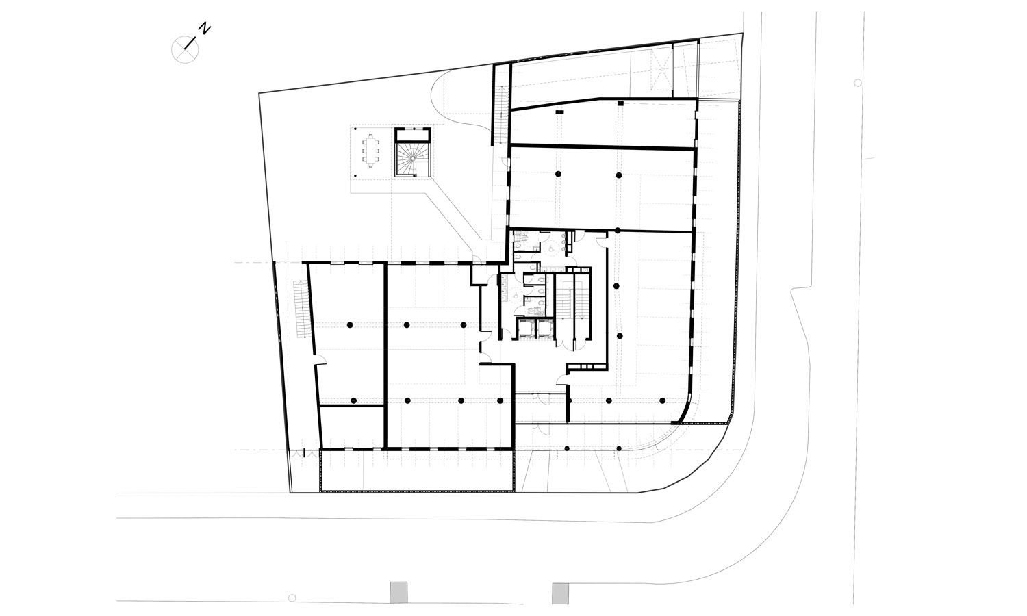
Le projet a pour objet la construction d’un immeuble de bureaux en R+5 développant 4 575 m2 de surface de plancher.

 

L’implantation choisit découle d’une volonté de proposer un bâtiment au caractère résolument urbain. En effet, le bâti vient s’implanter le long du domaine public, en continuité d’une limite séparative latérale à l’autre.

Outre cette volonté de souligner le caractère urbain du bâtiment, cette implantation en continuité permet de traiter de manière qualitative l’angle entre l’impasse  et la Rue structurante.

C’est d’ailleurs à l’angle des deux rues que sera ménagé un large parvis permettant d’accéder au cœur du bâtiment. Il sera traité tel un socle négatif, largement vitré, avec une hauteur sous plafond généreuse.

L’accès véhicules se fera depuis l’extrémité nord du bâtiment. Un parking sous-sol sur deux niveaux permettra d’accueillir l’ensemble des stationnements nécessaires à l’opération.

Cette implantation dégage ainsi un cœur d’îlot arboré à l’arrière, qui permettra de proposer un espace de convivialité pour l’ensemble des salariés du site. Les deux cerisiers existants seront conservés

Un espace abrité permettra aux salariés d’investir cet espace même si le temps n’est pas clément.

Il sera accessible depuis les parties communes ainsi que du parking sous-sol.

La volumétrie générale dégage deux niveaux (R+4 et R+5) en retrait du nu extérieur des trois premiers niveaux, dégageant de larges terrasses au R+4 et R+5.

Le R+5 est traité comme un niveau en attique, volontairement décollé par sa volumétrie mais également par sa matérialité.

Les pignons en limites de propriétés ont fait l’objet d’un traitement particulier afin de proposer une écriture dynamique depuis le fond voisin tout en respectant le respect des vues droites et obliques du code civil.

Le dialogue architectural affirme une certaine sobriété de l’enveloppe dans le but d’en favoriser son insertion.

Le choix du béton préfabriqué découle d’une volonté de construire un bâtiment avec de belles finitions de surfaces en veillant à la pérennité esthétique de l’ouvrage dans le temps.