Construction de 343 logements et commerces à Toulouse
logement collectif
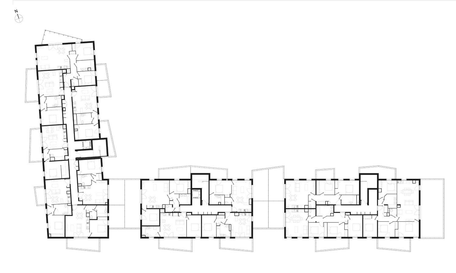
Construction de 343 logements en cinq bâtiments en R+5 distincts et d’aspects différents selon les recommandations que nous avons reçues lors des réunions de concertation. Dans ce programme, cent logements sont destinés au social ce qui représente environ 30% du programme. Ils sont répartis en soixante-sept logements pour le bâtiment B soit la totalité du bâtiment et trente-trois logements dans le bâtiment D situés sur l’aile Est avec une entrée indépendante. Seul le bâtiment D comprend dans son programme des commerces au rez-de-chaussée.
Une des données essentielles de départ pour ce programme était la création de plusieurs bâtiments sur une même unité foncière, mais dont l’architecture devait être différenciée, pour ne pas rester dans une logique de grand ensemble qui à l’échelle du projet aurait pu être pour le moins massif. Pour répondre à cette attente et malgré une volumétrie commune R+5 sur l’ensemble du programme, nous avons beaucoup travaillé l’écriture plastique sur des ensembles avec notamment l’utilisation de divers matériaux, mais aussi sur des décrochés de façade et en jouant sur les balcons, tantôt en loggia tantôt en balcon saillant. Élément commun à tous les bâtiments, nous avons souhaité traiter les soubassements de chaque entité de sorte à casser la verticalité imposante du R+5.
En effet, cela permet aux étages intermédiaires de se détacher du « socle » qu’est le rez-de-chaussée. La plupart de nos bâtiments se retournent en angle ce qui permet de ne pas subir un linéaire de façade imposant pour la même surface de bâti. Seul le bâtiment E reste de morphologie rectangulaire, mais cela est fait pour rompre avec les autres volumétries, mais aussi par une volonté affirmée de faire front avec un des atouts remarquables du site, le parc, et ainsi bénéficier au maximum de la vue.



