Centre de technologies appliquées aux semences (CSAT)

divers, tertiaire

  • Lieu Aussonne (31)
  • Maître d'ouvrage CORTEVA Agriscience – PIONEER génétique
  • Équipe de maîtrise d'œuvre Goubert & LANDES, Connexe, Barbanel, AEC
  • Calendrier Livré en 2022
  • Coût des travaux 4 M €
  • Surface de plancher 994 m2

Le projet concerne la construction centre de technologies d’application des traitements des semences pour le compte de CORTEVA Agriscience – PIONEER génétique.

Après les Etats-Unis en 2015 et le Brésil en 2019, Corteva Agriscience implante son tout 1er centre de recherche en Europe,  souhaitant se positionner comme un acteur majeur de l’agriculture durable

En plus de sa vocation scientifique, le bâtiment accueille une salle de conférence à usage strictement professionnel, interne à la société.

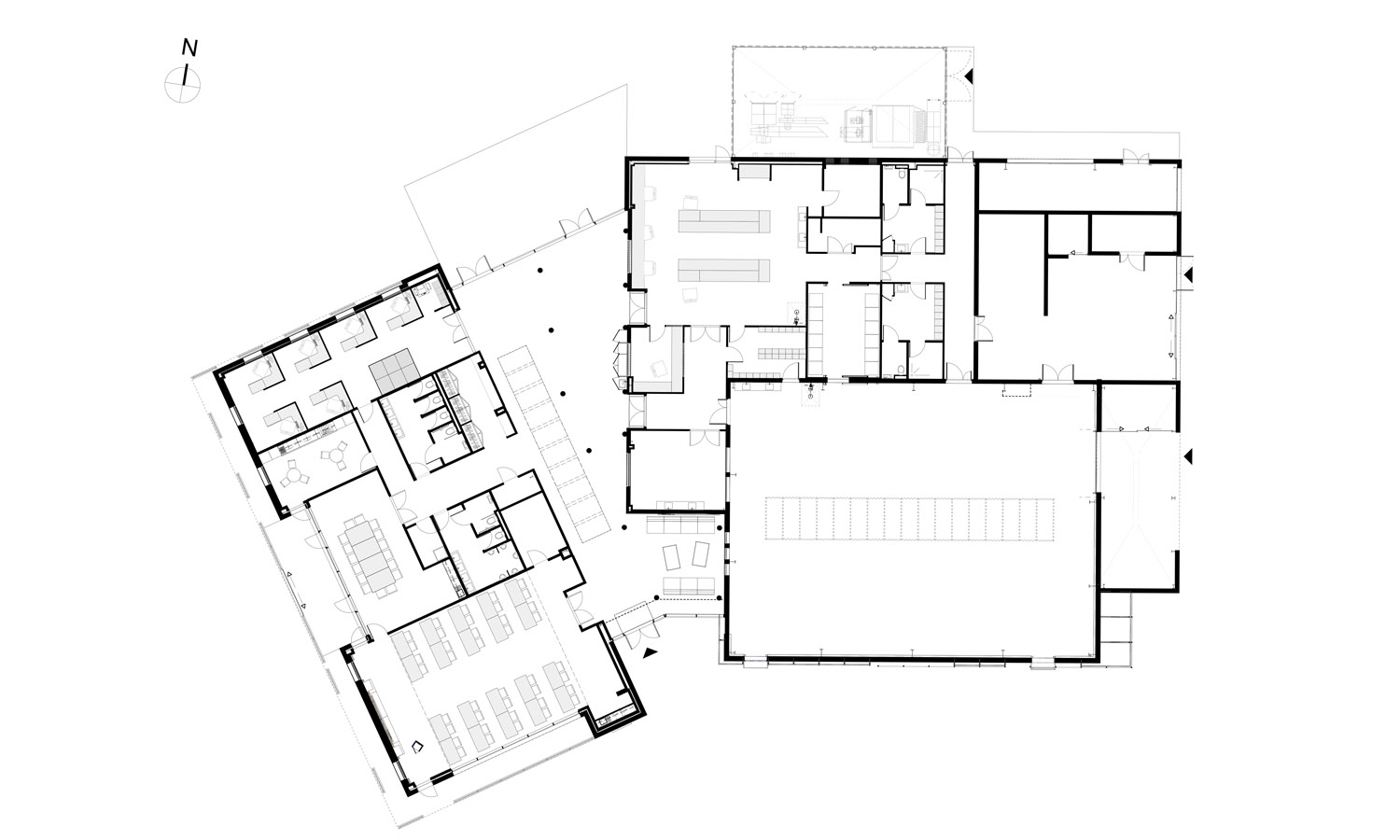
Le projet se divise en trois parties distinctes : la zone de recherche comprenant le laboratoire, les locaux techniques, la tour de traitement, et la zone administrative comprenant les bureaux, salle de réunion et de conférence. L’ensemble s’articule autour du hall d’accueil.

Le parti pris architectural est de faire ressortir ces éléments programmatiques dans la lecture du bâti : le bâtiment suit la même logique en articulant trois volumes différents autour d’un hall imaginé comme une continuité du cheminement extérieur, celui-ci menant au bâtiment depuis les locaux déjà existant sur site.

Notre recherche esthétique du centre de recherche et de traitement de semences se veut être une réponse aux exigences de CORTEVA Agriscience : CRÉER un signal sur le site d’Aussonne et symboliser la modernité de l’entreprise et sa projection vers l’avenir. Ce signal doit aussi intégrer les contraintes liées à l’exploitation propre du projet.

Le bâtiment se compose de trois volumes qui s’articulent autour du hall d’accueil. Ces volumes viennent compléter l’organisation du bâti déjà existant sur site.

Le hall d’accueil, autour duquel s’articule l’ensemble des volumes, est en position centrale et permet une traversée physique et visuelle du bâtiment. Implanté dans la continuité de l’allée d’arbres et du cheminement faisant jonction entre le projet et les bâtiments existant sur site, il est traité comme une rue intérieure complétement vitrée à chacune de ses extrémités, donnant d’un côté sur le parvis du bâtiment, et de l’autre sur la forêt de pins.

Cette rue intérieure dessert les trois volumes, qui assurent chacun une fonction programmatique précise :

– Le volume de l’administration et  la salle de conférence fait face à l’entrée sécurisée propre au centre de recherche. Le cheminement piéton le longe pour mener au parvis et à l’entrée principale.

– Le volume de la tour de traitement, d’une hauteur à l’acrotère de 16,25m, est l’élément signal du site. Visible en second plan depuis le chemin d’accès, il surplombe l’ensemble du bâtiment projeté et du bâti à proximité. Il donne directement sur le parvis du centre de recherche et de traitement de semences, et joue le rôle de pivot autour duquel l’ensemble des cheminements s’articule. La tour de traitement fait l’objet d’un travail de vêture approfondi.

– Le volume du laboratoire et des locaux techniques, marque l’accès arrière du bâtiment. Il se loge contre la tour de traitement et n’est pas visible depuis l’espace public.

 

Crédit vidéo : @corteva